Серия имеет следующие типоразмеры:
SRT28-RT40, SRT28-RT50, SRT40-RT70, SRT40-RT85, SRT50-RT110

Система обозначения червячных мотор-редукторов серии SRT-RT
SRT/RT 40/70 140(7x20) АС28 F(L) IEC:63 B14 //0,12/4-11/090/063/IM2181-IP54/F/220/380/50/У3/S1-Т/10/АC/220/380-К2
SRT/RT – Cерия двухступенчатого редуктора
40/70 – Межосевое расстояние редуктора первой и второй ступени, мм
140 – Номинальное передаточное отношение сборки
(7x20) – Номинальное передаточное отношение первой и второй ступени
АС28 – Диаметр выходного вала, мм
F(L) – Выходной фланец
IEC – Стандарт электродвигателя
63 – Типоразмер электродвигателя (высота от лап до центра вала)
B14 – Тип фланца электродвигателя (малый)
0,12 – Мощность электродвигателя в кВт
4 – Количество полюсов электродвигателя (1500 об/мин)
090 – Внешний диаметр фланца электродвигателя (PAM), мм
063 – Высота от лап до оси (только для лапного исполнения, для фланцевого исполнения ставится 000)
IM2181 – Конструктивное исполнение по способу монтажа
IP54 – Степень защиты
F - Класс изоляции обмоток электродвигателя
220/380/50 – Напряжение (В) и частота (Гц) питания электродвигателя
У3 - Климатическое исполнение
S1 - Режим работы
Т - Электротормоз
10 - Момент тормоза в Нм
АС - Тип питания электротормоза (переменное)
220/380 – Напряжение питания электротормоза
К2 – Положение клеммной коробки |
Типоразмер |
M max, Нм |
D - выходного вала,
мм |
SRT28-RT40 |
60 |
19 |
SRT28-RT50 |
110 |
24 |
SRT40-RT70 |
310 |
28 |
SRT40-RT85 |
600 |
32 |
SRT50-RT110 |
900 |
42 |
|
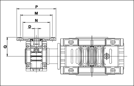
Габаритные и присоединительные размеры
Реактивная штанга, выходной вал
Присоединительные размеры фланца электродвигателя
Монтажные положения
Вес червячных редукторов серии SRT-RT, кг
Выходные обороты и мощность электродвигателей (кВт) pdf.


Назад
Присоединительные размеры фланца электродвигателя

|
PAM |
N |
M |
P |
Q |
225 |
300 |
400 |
450 |
500 |
600 |
750 |
900 |
1200 |
1500 |
1800 |
2400 |
3200 |
4000 |
5000 |
D |
SRT28-RT40 |
56B5 |
80 |
100 |
120 |
54,5 |
9 |
9 |
9 |
9 |
9 |
9 |
9 |
9 |
9 |
9 |
9 |
9 |
9 |
9 |
9 |
5614 |
50 |
65 |
80 |
54,5 |
SRT28-RT50 |
56B5 |
80 |
100 |
120 |
54,5 |
9 |
9 |
9 |
9 |
9 |
9 |
9 |
9 |
9 |
9 |
9 |
9 |
9 |
9 |
9 |
5614 |
50 |
65 |
80 |
54,5 |
63B5 |
95 |
115 |
140 |
54,5 |
11 |
11 |
11 |
11 |
|
|
|
|
|
|
|
|
|
|
|
63B14 |
60 |
75 |
90 |
54,5 |
SRT40-RT70 |
63B5 |
95 |
115 |
140 |
65 |
11 |
11 |
11 |
11 |
11 |
11 |
11 |
11 |
11 |
11 |
11 |
11 |
11 |
11 |
11 |
63B14 |
60 |
75 |
90 |
65 |
71B5 |
110 |
130 |
160 |
66 |
14 |
14 |
14 |
14 |
14 |
14 |
14 |
14 |
14 |
|
|
|
|
|
|
71B14 |
70 |
85 |
105 |
66 |
SRT40-RT85 |
63B5 |
95 |
115 |
140 |
65 |
11 |
11 |
11 |
11 |
11 |
11 |
11 |
11 |
11 |
11 |
11 |
11 |
11 |
11 |
11 |
63B14 |
60 |
75 |
90 |
65 |
71B5 |
110 |
130 |
160 |
66 |
14 |
14 |
14 |
14 |
14 |
14 |
14 |
14 |
14 |
|
|
|
|
|
|
71B14 |
70 |
85 |
105 |
66 |
SRT50-RT110 |
63B5 |
95 |
115 |
140 |
78 |
|
|
|
|
|
|
|
|
|
|
11 |
11 |
11 |
11 |
11 |
63B14 |
/ |
/ |
/ |
/ |
71B5 |
110 |
130 |
160 |
78 |
14 |
14 |
14 |
14 |
14 |
14 |
14 |
14 |
14 |
14 |
14 |
14 |
14 |
|
|
71B14 |
70 |
85 |
105 |
75 |
80B5 |
130 |
165 |
200 |
78 |
19 |
19 |
19 |
19 |
19 |
19 |
19 |
19 |
|
|
|
|
|
|
|
80B14 |
80 |
100 |
120 |
77 |
Назад
Реактивная штанга, выходной вал


Назад
Монтажные положения двухступенчатых червячных редукторов серии SRT-RT

Назад
Положение клемной коробки электродвигателя

Назад
Вес червячных редукторов серии SRT-RT, кг
SRT28-RT40 |
3,9 |
SRT28-RT50 |
5,2 |
SRT40-RT70 |
12 |
SRT40-RT85 |
16,5 |
SRT50-RT110 |
45 |
|